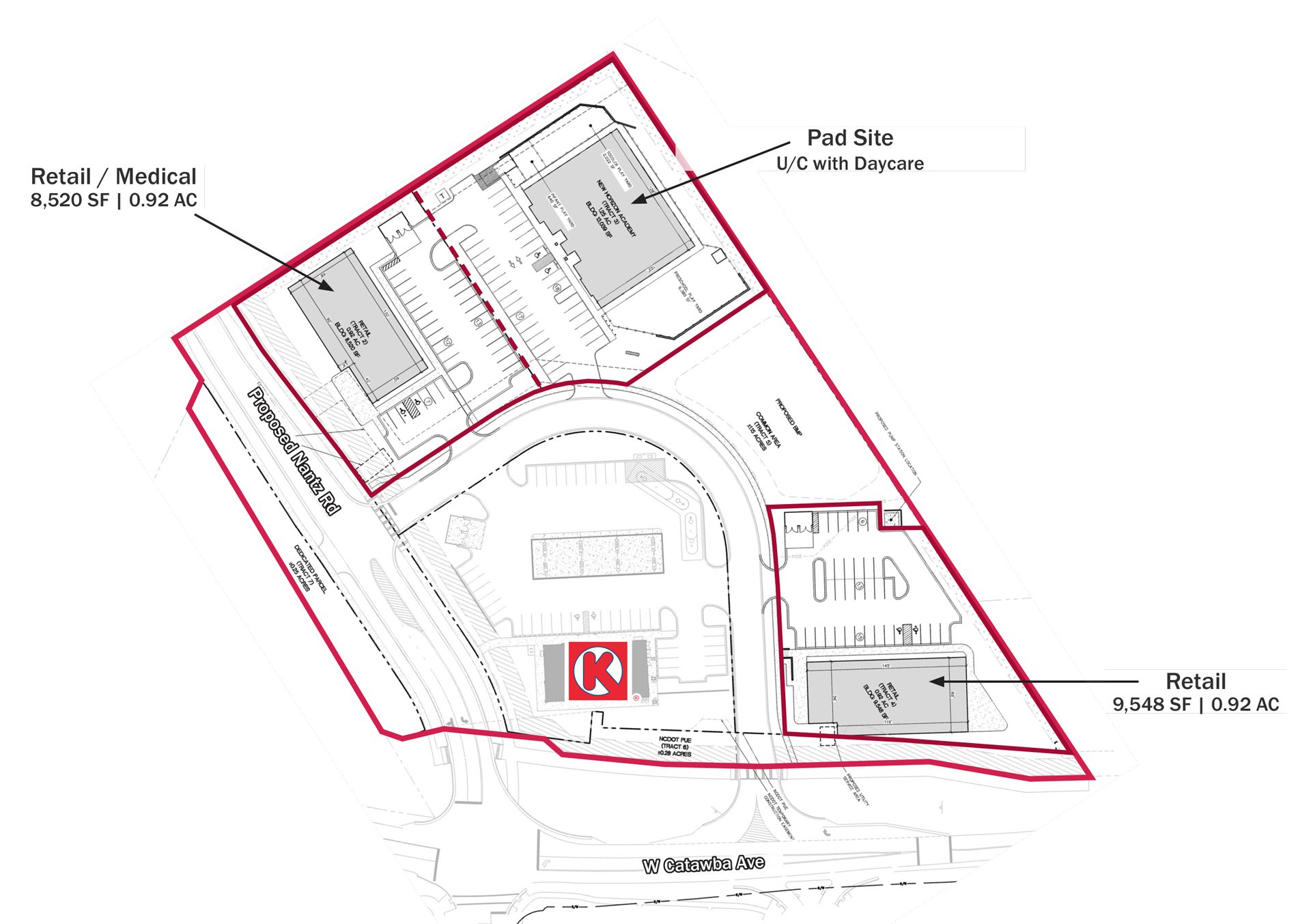
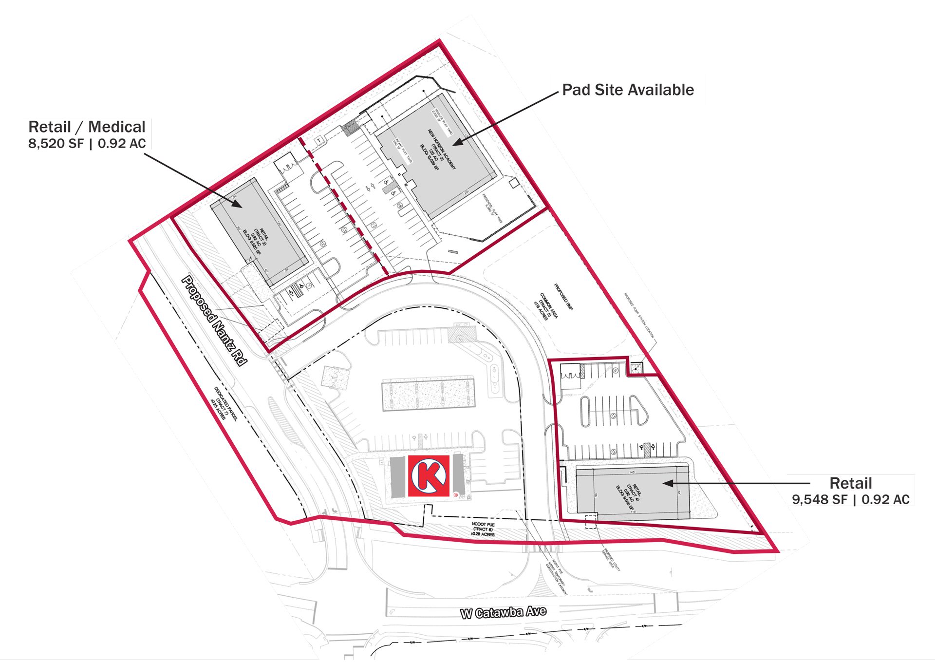
- Retail/medical space available at fully signalized intersection of W. Catawba Avenue and Nantz Road
- Site has been graded with shell spaces delivering Q1 2027
- Less than 1.5 miles from I-77 and Sam Furr Road (Hwy 73) with immediate access to several communities along Lake Norman
Retail Space Available For Lease in Cornelius – Lake Norman








